The Flagship

Studio 1

When you step into our flagship Studio 1, you’re entering a space which combines the best of cutting-edge recording technology with a vast array of vintage analogue equipment. While subtly modernised, the studio still maintains the same warm sound and laid-back ambience that Tony Visconti envisioned when he planned the space back in 1976. Factor in the building’s calming sanctuary from the rush of Soho life and the welcoming touch of our staff, and you’ll discover that it’s the perfect environment for your creativity to flourish.

Studio 1 is also a rarity in central London. Not only is it one of the few studios to have a top range Atmos for Music set-up that is directly accessible from a spacious live room (measuring 650 square foot / 60 square metres), but it’s also one of the last commercial large-format recording studios that remain in the area.

Our enviable range of equipment provides that special something regardless of your approach to recording. Running alongside our 48 channels of pristine and modern SSL Duality preamps, we have a wealth of plug-ins and 28 channels of characterful outboard preamp – including 8 Industry-standard Neve 1073s, and a rare 8-channel prototype Shadow Hills preamp. Everyone who visits our studio is irresistibly drawn to our beautiful Steinway classic grand piano, while our instruments and amps include items that have been previously owned by influential musicians stretching from George Harrison and Alvin Lee to Oasis.

Please look at our website www.deanst.com for full equipment list

Dean St. Studios

Atmos

An early adopter of Dolby Atmos for Music, Dean Street was the second independent studio in the UK to acquire an Atmos setup – and remains one of the only studios worldwide with a live room attached directly to an immersive audio system, offering unparalleled future possibilities for direct-to-Atmos recording. With our two rooms based on an expanded PMC 9.1.4 layout, we believe our monitoring setup to be one of the most consistent and fulfilling listening experiences on offer in London– and have a wealth of previous clients to support it. Across genres – from Rock with the Foo Fighters, Rolling Stones, and Wargasm; to cutting edge Pop with Holly Humberstone, Maisie Peters, and Girl In Red – mixes done at Dean Street have consistently held up to the highest of standards.

Holding over two years of experience in Atmos, our team has seen the format evolve and change, and are uniquely positioned to provide expert guidance at every step of the process – from stemming to premix, mixing, and distribution. Whether it be relying on our talented engineers to deliver a commercial and competitive mix for your project, or dry-hiring and utilising our wealth of in-house knowledge, Atmos at Dean St is an experience tailored to you and your needs.

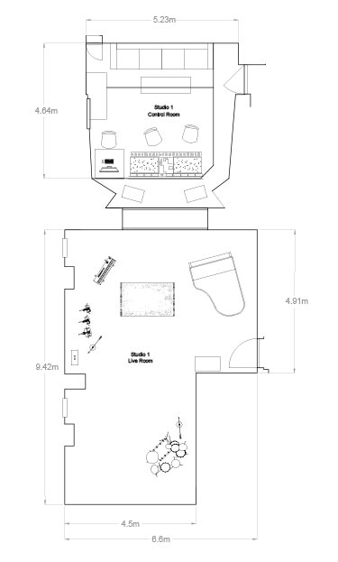
Studio 1

Floorplan

Equipment Listing

Recording
SSL Duality 48 channel
SSL XLogic Alpha-link 48 I/O Converter
Crane Song HEDD 192
Avid Pro Tools MTRX
Pro Tools Ultimate
Mac Pro (Late 2013 Running 10.14.6)
3.7 GHz Quad-Core
64GB RAM
2x Avid HDX Card
Studer A80 2” 16 Track Multi Track
Hear Back Headphone System
Full Array of HD + Native Plug-ins

Dynamics / FX
Analogue Tube AT-1
Analogue Tube AT-101
EMI TG1 Stereo Comp/Lim
4 x EL Distressor El8X
1 x EL Distressor El8
2 x UA 1176 Blackface
UA LA-2A
UA LA-3
SPL Transient Designer
2 x Bricasti M7 Reverb +Controller

Monitoring
Stereo
L/R PMC IB2S XBD-A mk1
Yamaha NS10 (Crown XLS402 Amp)
DT100 + DT150+ DT770 Pro Headphones
AKG K182 Headphones

Dolby Atmos
L/R PMC IB2S XBD-A mk1
C IB2S-A-C mk2
LFE PMC sub2
Surrounds and Heights: PMC Wafer2 Wafer Amps:
Linea Research 88C3
DAD MOM monitor operating module Focusrite
RedNet AM2 Monitoring Unit

Mic Pres / EQs
8 x Neve 1073
8 x Shadow Hills GAMA
EMI TG2 Dual Mic Pre
Neumann V402
Rupert Neve Shelford Channel
2 x Analogue Tube AT-3
Clariphonic Parallel Equalizer
SSL Fusion
48 SSL Duality Channel Strips

Microphones

Condensers
Wunder Audio U47 (valve)
Lucas CS-1 (C12 copy)
Peluso u47 (valve)
Neumann U87 AI (x3)
Neumann U87 (x1)
Neumann U87 p48 (valve)
Neumann u47 Fet i
Neumann KM84 Josephson
E22S Josephson C42 (x2)
Gefell M300 (x2)
Joe Meek JM57
Sontronics STC-1S (x2)
AKG 414
Shure Beta 87a (x2)
DPA K4
PZM

Dynamics
Sennheiser 421 (x5)
Sennheiser E840 (x4)
AKG D112 (x2)
Electrovoice RE20
Shure SM7b (x3)
Shure SM57 (x4)
Shure SM58 (x2)
Shure Beta 57a (x2)
Shure Sm56 (x3)
Shure 520DX
Yamaha Subkick
Copperphone
JSH GM55

Ribbons
Royer SF-24
Royer R121
Crowley & Tripp El Diablo
Coles 4038 (x2)

Amplification

Guitar Amps
Fender Blues Junior x3
Fender Bassman Tweed (1997)
Gibson Super Goldtone x2
Marshall JCM 800 Head
Marshall JMP Combo
Marshall Woodstock 1960 4×12 Cab
Marshall Classic 5
Orange AD50
Orange AD30
Orange OTR
Orange Tiny Terror
2 x Orange PPC 4×12
Vox AC30
Vox AC15
Vox VT15
Soundcity 20C

Bass Amps
Ampeg B15 Portaflex Bass Combo (1970)
Ashdown Head Max 300
Ashdown ABM C115-500 Combo

Large range of effects pedals also available

Instrumentation

Electric Guitars
Gibson Firebird VII Gibson SG
Gibson ES 235 Gretsch Electromatic
Fender Telecaster Thinline
Fender Telecaster FSR Custom
Rickenbacker 360 (12string)
Epiphone Supernova
Epiphone Sheraton
Danelectro Baritone
Bass Amps
Ampeg B15 Portaflex Bass Combo (1970)
Ashdown Head Max 300
Ashdown ABM C115-500 Combo
Large range of effects pedals also available

Acoustic Guitars
Gibson J-185 (12string) Gibson J200 Gibson J45
Gibson Hummingbird Goldtone Resonator Guitar
Epiphone Texan (Nashville)

Bass
Rickenbacker 4001
Fender Mustang (short scale)
Squire Precision

Keys
Steinway Model B Classic Grand Piano
Hammond C3 Organ
Leslie 122 Speaker Cabinet
B-Squire Tak Piano
Harmonium (Full size)
Mellotron M4000
Wurlitzer 200
Micro Moog
Nord Stage mk1
Micro Korg mk1
Roli Seabord Rise

Drums
Premier Maple Kit Snares:
Gretsch New Classic Craviotto Maple Ludwig Black
Beauty Pearl Brass
Ludwig Chrome

Cymbals
Zildjan Paiste Sabian
Various Percussion

Miscellanous
RCF ART310a PA Speakers (x2)
Peavey 14USB live- mixer
Radial JD7
Little Labs Phase Alignment Tool
Midiman USB
Midiinterface 32” TV Screen
27” Computer Monitor
MTR HP6 headphone amp
Korg Rack Tuner

Plugins

AIR Plugin Bundle Avid
Pro Plugin Bundle
Altiverb 7 Reverb
Antares Autotune
Celemony Melodyne Assistant 4
Dolby Atmos Production
Eiosis AirEA Premium
Fabfilter Complete
Izotope Vinyl
Kilohearts Nundle
Massey Bundle
Moogerfooger Bundle
Native Instruments Kontakt 5
Native Instruments Reaktor 6
NUGEN Audio Halo Upmix and Downmix
Plugin Alliance
Soundtoys Complete
Slate Everything Bundle
Trigger 2
Valhalla Room, Plate, Vintage Verb,
SpaceModulator, Delay
Vocalign Pro
Waves 10 Gold Bundle
UADx Mix Bundle
UVI Falcon

Recent Artists

Visual Portfolio, Posts & Image Gallery for WordPress